圓振動篩生產廠家報價
圓振動篩生產廠家-合理報價|型號|圖紙|推薦選型-振動篩廠家直銷 整機質保1年 歡迎咨詢訂購 13353676726

YA圓振動篩介紹
圓振動篩的運動軌跡呈圓周,做圓形運動,是一種多層數、高效新型振動篩。它主要適用于選煤、選礦、建材、電力及化工等行業。
YA圓振動篩結構組成
奧創圓振動篩主要由篩箱、篩網、振動器及減振彈簧等組成。如無特殊要求,YA和2YA型為紡織篩面,YAH型為沖孔篩面,各類篩面均能滿足。
YA系列圓振動篩主要由偏心塊激振器、篩箱、電動機、及支承裝置等組成。采用小振幅,高頻率,大傾角結構,使該機篩分效率高、處理量大、壽命長、電耗低、噪音小。
YAX稀油圓振動篩結構:由彈簧支承組、傳動裝置、篩箱、支承座、稀油潤滑振動器等組成。
YA圓振動篩工作原理
圓振動篩的篩箱運動軌跡為圓形或橢圓形,圓振動篩采用慣性激振器產生振動,其振動源一般為電動機帶動激振器。圓振動篩為單軸振動器,固定在篩箱上的主軸由電機帶動告速旋轉,安裝在主軸上的偏心體隨之轉動,產生離心慣性力,使可以自由振動的篩箱產生近似圓形軌跡的振動。
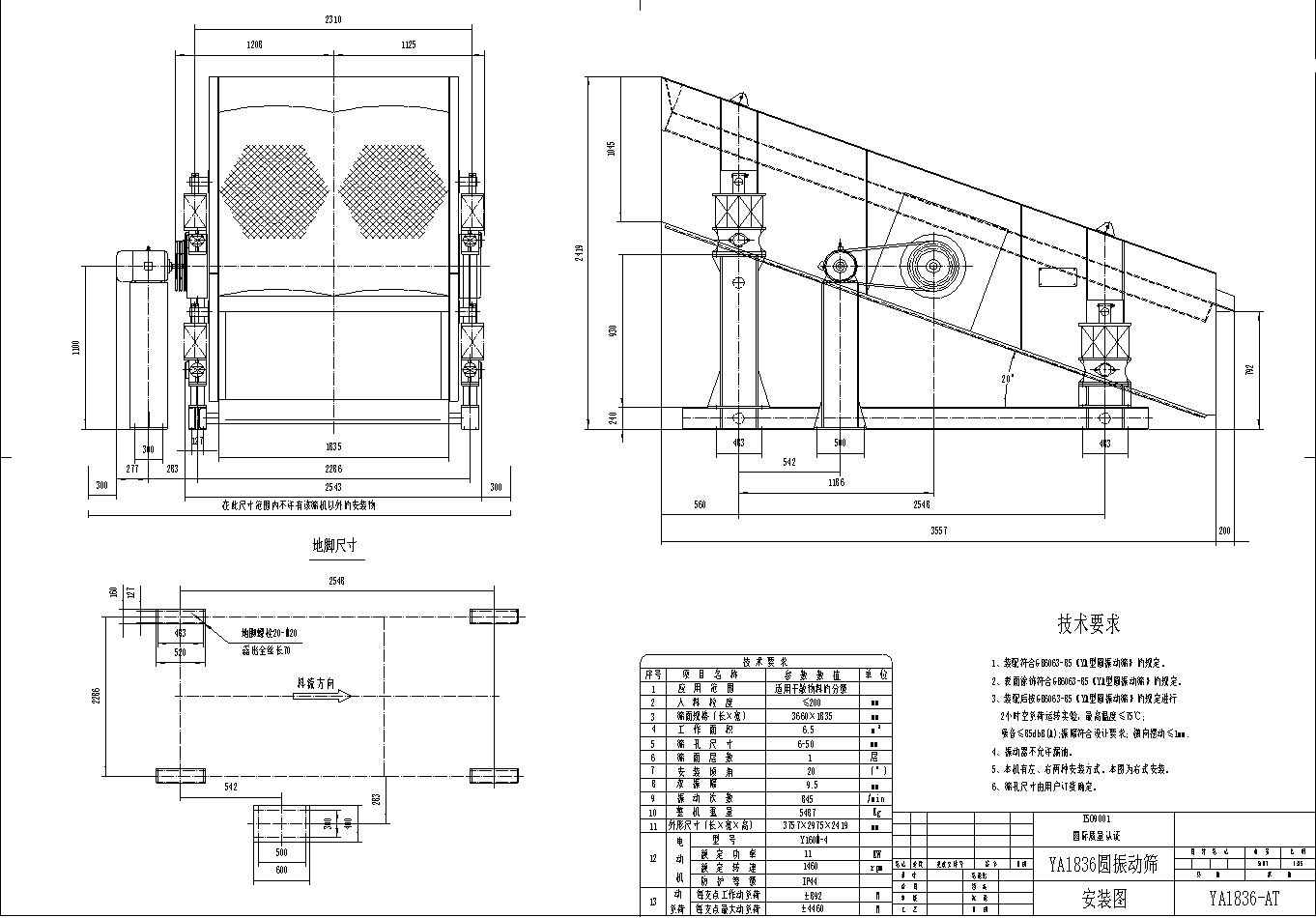
YA圓振動篩圖紙:
YA圓振動篩特點優勢
1、處理能力大,篩分效率高。
2、振動器采用軸承稀油潤滑、外置式塊偏心結構。具有激振力大,軸承負荷小、溫度低,噪音小等特點。(軸承溫升小于35°)。
3、振動器整體拆裝,維護、更換方便,大大縮短了檢修周期。(更換振動器只需1~2小時)。
4、篩機側板采用整板冷作、無焊接、強度高使用壽命長。 橫梁與側板間聯接采用抗扭剪高強螺栓聯接,無焊接、橫梁易更換。
5、篩機采用橡膠彈簧減振,與金屬彈簧比,具有噪音小,壽命長,過共振動區平穩、 篩機各支點動負荷小等優點。
6、電機與激振器聯接采用撓性聯軸器,具有使用壽命長,對電機沖擊小等優點。
YA圓振動篩技術參數
| 型號 | 篩面層數 | 篩網面積 (mm) | 篩孔尺寸 (mm) | 進料尺 (mm) | 處理能力 (t/h) | 振動頻率 (Hz) | 雙振幅 (mm) | 電力功率 (kw) | 重量(t) | 外形尺寸 |
| YA1230 | 1 | 3.6 | 3-50 | 200 | 7.5-70 | 800-970 | 8 | 5.5 | 1.75 | 3073x2030x1611 |
| 2YA1230 | 2 | 3.6 | 3-50 | 200 | 7.5-70 | 800-970 | 8 | 5.5 | 2.34 | 3122x2050x2247 |
| 3YA1230 | 3 | 3.6 | 3-50 | 200 | 7.5-70 | 800-970 | 8 | 7.5 | 3.05 | 3122x2050x2700 |
| 2YA1548 | 2 | 7.2 | 5-50 | 400 | 50-208 | 970 | 8 | 15 | 5.33 | 4400x2610x2857 |
| 3Y1548 | 3 | 7.2 | 5-50 | 400 | 50-250 | 970 | 8 | 15 | 6.07 | 5650x2528x3400 |
| 3YA1848 | 3 | 8.64 | 5-80 | 400 | 50-300 | 970 | 8 | 18.5 | 6.93 | 5027x3100x3500 |
| 3YA1860 | 3 | 10.8 | 5-50 | 400 | 50-350 | 970 | 8 | 22 | 7.7 | 6200x2240x1650 |
| 2YA2160 | 2 | 12.6 | 5-100 | 400 | 100-500 | 730 | 30 | 10.2 | 6374x3821x3707 | |
| 2YA2460 | 2 | 14.4 | 5-150 | 400 | 150-700 | 730 | 37 | 12.35 | 6374x4121x3707 |
YA圓振動篩廠家友情提示:請通過正規渠道購買奧創YA圓振動篩,以保障您的合法權益!
訂購網址請登錄河南奧創機械有限公司官方網站:m.symhhb.cn 24小時服務熱線:13353676726


