
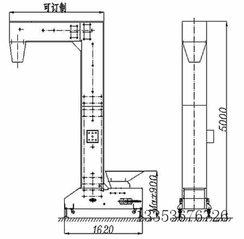
斗式提升機的結構和工作原理
1.斗式提升機的結構
分別為:進料口、張力裝置、牽引機構、料斗、驅動平臺、傳動裝置、傳動輪、頭蓋殼、卸貨口、中間蓋殼、張力輪、底座。
2.斗式提升機的工作原理
斗式提升機的工作原理是,當傳送帶或鏈條被提起到頂部,繞著頂輪旋轉時,料斗從下面的儲藏室中撈起物料,而斗式提升機則將物料傾斜到接收槽中。傳動式斗式提升機皮帶一般采用橡膠帶,安裝在上下傳動滾筒和上下轉鼓上。帶鏈傳動的斗式提升機一般配備兩條平行傳動鏈,上下有一對傳動鏈輪,底部或以上裝有一對鏈輪。斗式提升機一般配有外殼,以防止斗式提升機中的粉塵飛揚。
斗式提升機主要部件
1.漏斗
漏斗是提升機的材料部件。根據料斗的性質和提升機的結構特點,漏斗可分為三種不同的形式,即柱底深漏斗、淺料斗和尖角漏斗。
2.牽引部件
兩種膠帶和鏈條可用于斗式提升機牽引部件,帶式輸送機和帶式輸送機是相同的。漏斗專用頭的螺絲和彈性墊片固定在引線上,帶寬比漏斗的寬度大35-40毫米[4]
房屋:內置驅動和停車。
機身:薄鋼板焊接成方形外殼,并配有運行偏差報警器。
下部:安裝張緊裝置。

斗式提升機的應用
斗式提升機廣泛應用于散裝、顆粒、粉狀物料的垂直運輸,如熟料、水泥、礦渣、碎煤、碎石灰石、石膏等。一般情況下,立式斗式提升機大多采用,只有當立式斗式提升機不能滿足特殊的工藝要求時,才采用斜式斗式提升機。由于傾斜斗式提升機的牽引部件在垂直尺寸過大時需要加裝牽引部件,結構復雜,很少使用斜斗式提升機。
斗式提升機用于垂直提升石灰石、煤、石膏、熟料、干粘土和其他粉狀物料,如生料、水泥、煤粉等。
Z型翻斗提升機廠家提示:請通過正規渠道購買奧創輸送機,以保障您的合法權益!
訂購網址請登錄河南奧創機械有限公司官方網站: m.symhhb.cn 24小時服務熱線:13353676726